23/03/2023

Moreno: buscan que el barrio San Carlos tenga cloacas

El Gobierno provincial hizo un llamado a licitación para la construcción de una red primaria de cloacas en el barrio San Carlos de Moreno. Todos los detalles.

El Ministerio de Infraestructura y Servicios Públicos de la Provincia de Buenos Aires anunció el llamado a licitación para la construcción de una red primaria de cloacas en el barrio San Carlos, uno de los más postergados del partido de Moreno en cuanto al acceso a servicios públicos, para el próximo martes, 25 de abril.

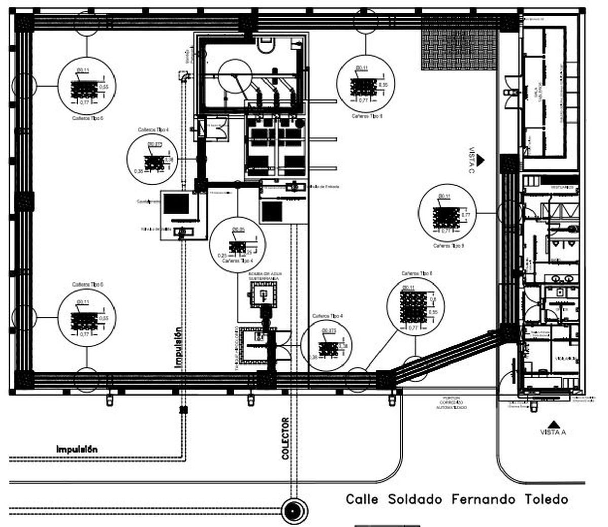
La obra contempla la instalación de una estación de bombeo y su correspondiente impulsión, cuyos efluentes llegarán a una boca de registro mediante una cañería a presión de 475 metros de longitud, por la cual se transportarán los líquidos hasta un desagüe en la esquina de las calles Darwin y Plutarco, cerca de los arroyos Los Perros y Las Catonas.

Moreno barrio San Carlos.JPG
La estación de bombeo de la red de cloacas para el barrio San Carlos, en Moreno.

La estación de bombeo de la red de cloacas para el barrio San Carlos, en Moreno.

Según indican los pliegos, a los cuales Viví el Oeste tuvo acceso, la estación de bombeo se va a localizar cerca del cruce de María Montivero y Soldado Marcelo Toledo y contará con tres dispositivos de velocidad fija, cuya capacidad será de 22 litros por segundo. Dos de ellos funcionarán permanentemente y el restante actuará como reserva.

Por su parte, el colector para la red primaria consiste en la construcción de conductos cloacales con diámetros nominales de 225 milímetros por 36 metros, en tanto que la población a servir alcanza aproximadamente los 7.500 habitantes del mencionado vecindario.

Moreno.JPG
El predio donde estaría la estación de bombeo.

El predio donde estaría la estación de bombeo.

La fecha prevista de terminación de las obras es de 540 días corridos y el presupuesto estimado asciende hasta los 341.108.631 pesos, los cuales provienen de un préstamo del Banco Interamericano de Desarrollo (BID) y se enmarcan en el Programa de Saneamiento Ambiental de la Cuenca del Rio Reconquista.

En exactamente un mes se van a dar a conocer las ofertas técnicas y luego las económicas, momento en el que el Gobierno provincial decidirá por cuál de ellas se inclina, si realiza una nueva licitación o si directamente la cancela.